Schwedenhaus Nordkap 150 Frankfurt

Nordkap 150 Schwedenhaus

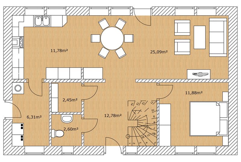
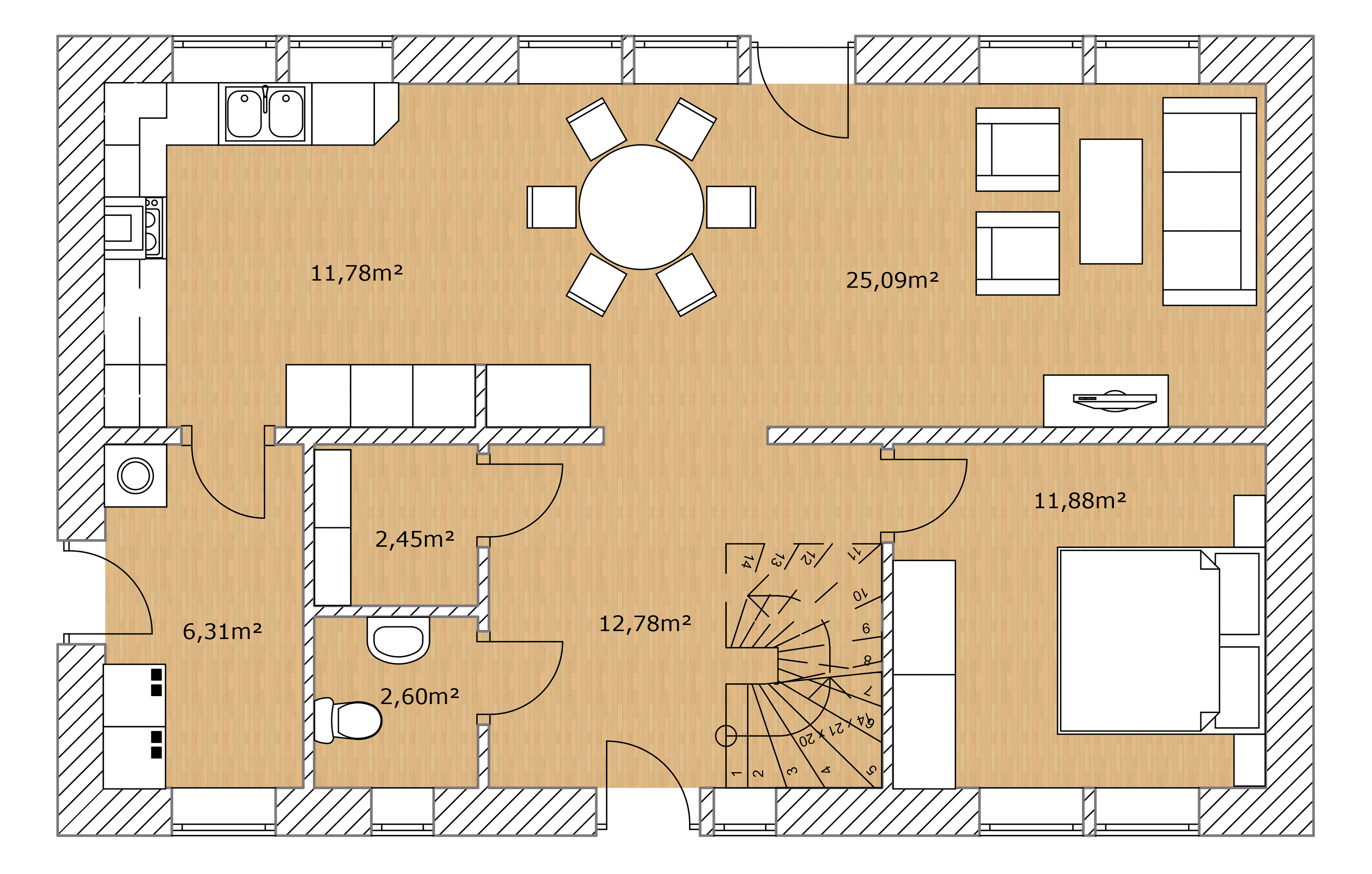
Der offene Grundriss im Erdgeschoss sorgt für ein großes Raumgefühl.

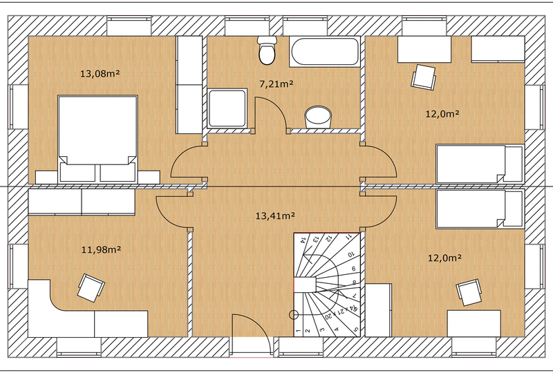
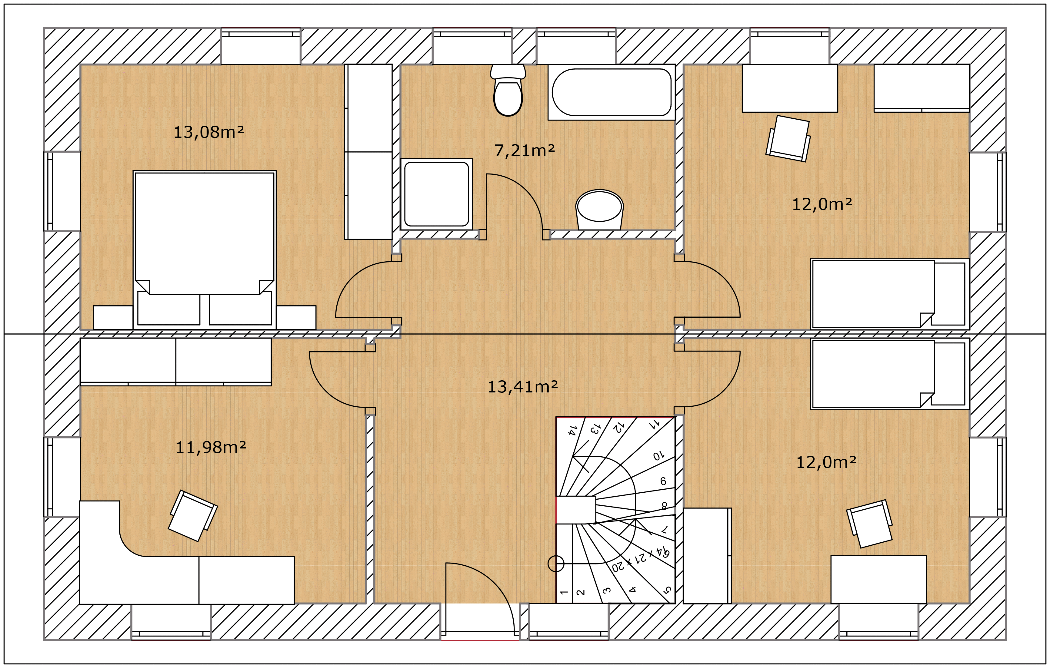
Landhaus mit symmetrischen Proportionen

Dieses schwedische Landhaus besticht durch seine symmetrischen Proportionen. Der vorgesetzte Eingang mit Balkon verleiht dem Haus eine besondere Note. Viele Fenster bringen Tageslicht ins Haus. Der gut durchdachte Grundriss gibt genügend Platz für eine vierköpfige Familie. Der offene Grundriss im Erdgeschoss sorgt für ein großes Raumgefühl, welches oft nur in viel größeren Häusern vorhanden ist. Das Modell Nordkap 150 hat zusätzlich ein Gästebad und mit dem Schlafzimmer im Erdgeschoss wird später ein Wohnen auf einer Ebene ermöglicht. Dann haben die Kinder das Obergeschoss für sich.

Interesse?
Fragen Sie uns einfach!

Eckdaten

  • 146m² Wohnfläche
  • Landhaus
  • Energieklasse: A+
  • 6 Zimmer
  • 2 geschossig

Ausstattung EG

  • offener Wohnbereich (Küche - Wohn- Esszimmer)
  • Schlafzimmer

Ausstattung OG

  • 4 Zimmer
  • Badezimmer

Besonderheiten EG

  • überdachter Eingang

Besonderheiten OG

  • Balkon
Aussendienst Berg Schwedenhaus GmbH

Berg Schwedenhaus GmbH

Wir planen und bauen für Sie als Familenbetrieb Ihr Schwedenhaus von A bis Z

Kontakt

Sie haben Fragen, Wünsche, Anregungen? Dann kontaktieren Sie uns. Am besten hier direkt über das Kontaktformular, ansonsten gerne per Email oder Telefon. Wir freuen uns auf Sie.

Baum 1 Baum 1 Baum 1
Natur Hintergrund
cookie