Älmhult Schwedenhäuser

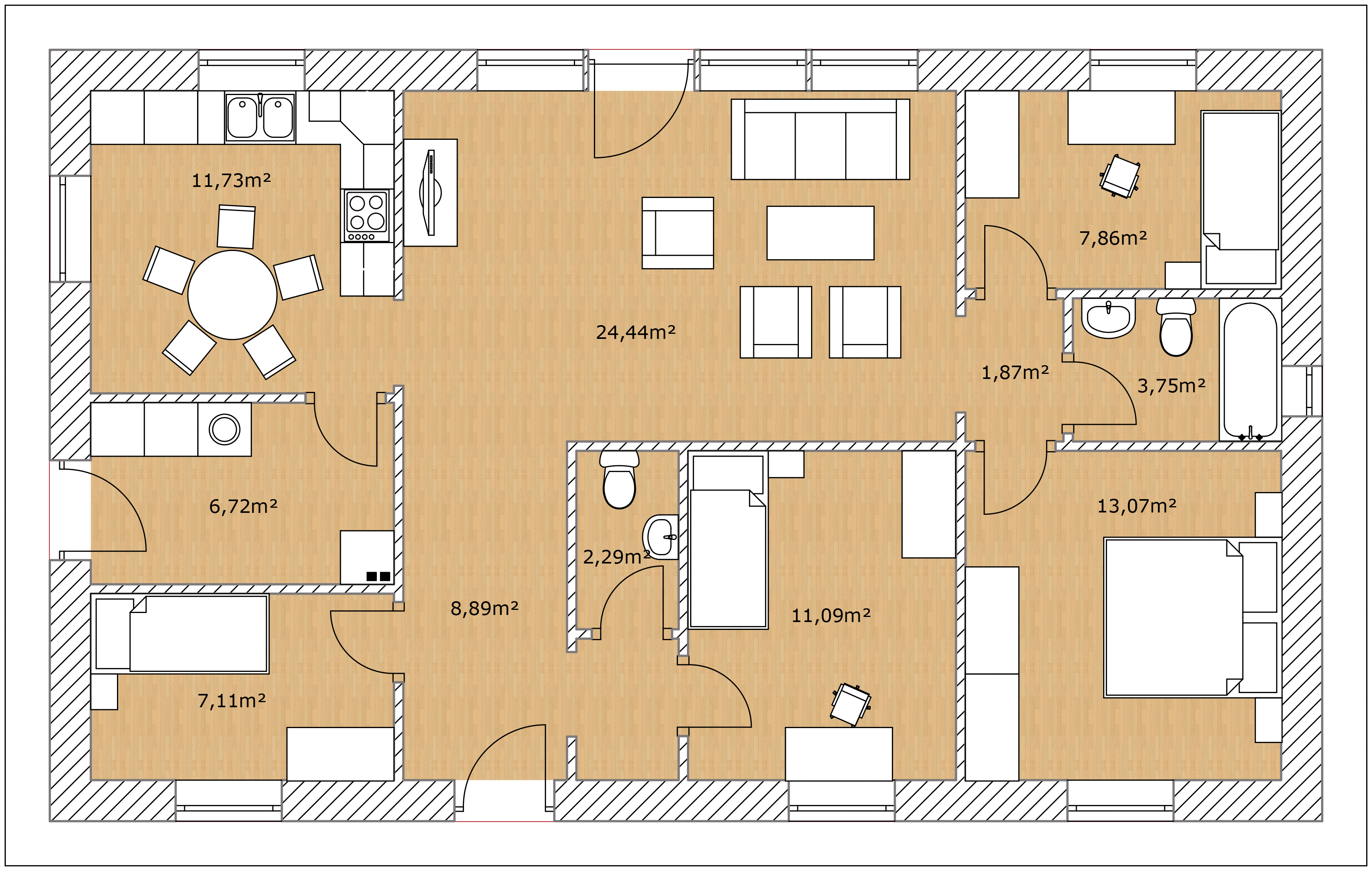
Älmhult 100 Schwedenhaus

Für kleine Familien, wie auch für die ältere Generation!

Älmhult ist unser beliebtestes Haus

Es ist für kleine Familien, genauso wie auch für die ältere Generation - als Altersruhesitz-  konzipiert. Der Grundriss ist problemlos veränderbar und kann so Ihren Bedürfnissen sehr gut angepasst werden. Ob Sie barrierefrei Wohnen möchten oder nur gerne breitere Türen bevorzugen - alles ist realisierbar. Der überdachte Eingang bietet Schutz vor Nässe, um trockenen Fußes ins Haus zu kommen. Auf Wunsch lädt eine breite, überdachte Terrasse zum verweilen ein.

Interesse?
Fragen Sie uns einfach!

Eckdaten

  • Bungalow
  • 100 m² Wohnfläche
  • Energieklasse A+
  • 5 Zimmer
  • eingeschossig

Ausstattung

  • offenes Wohnzimmer
  • Gäste-WC

Besonderheiten

  • überdachter Eingang
  • optional überdachte breite Terrasse
  • freie Raumaufteilung
Aussendienst Berg Schwedenhaus GmbH

Berg Schwedenhaus GmbH

Wir planen und bauen für Sie als Familenbetrieb Ihr Schwedenhaus von A bis Z

Kontakt

Sie haben Fragen, Wünsche, Anregungen? Dann kontaktieren Sie uns. Am besten hier direkt über das Kontaktformular, ansonsten gerne per Email oder Telefon. Wir freuen uns auf Sie.

Baum 1 Baum 1 Baum 1
Natur Hintergrund
cookie